Die Schaltpläne für die Aufbauelektrik
Die Elektrotechnik im Aufbau des Hobby 600 der 1. Generation wurde im Laufe der ersten Jahre mehrfach verändert. An Hand eines kleinen farbigen Aufklebers mit einer 4-stelligen Numer am Bord-Control-Center (BCC) lässt sich die passende Schaltplanversion ermiteln.
Hier findet Ihr die verschiedenen Schaltpläne für den Hobby 600 - ohne Gewähr!
Diese Schaltpläne wurden mir mit freundlicher Genehmigung des Hobby-Wohnwagenwerk für die private Nutzung zur Verfügung gestellt. Sie dürfen nicht ohne Genehmigung kopiert und auf anderen Webseiten pupliziert werden.
Dieser Plan zeigt die schematische Anordnung von Ladegerät und Contoll- Panel und der verlegten Leitungen.
Quelle: Zeichnung Hobby- Wohnwagenwerk vom 14.06.85
Die Zeichnungen wurden mir von Carsten aus Koblenz zur Verfügung gestellt.
Am 20.12.07 durch Kabelplan von Simon aus den Niederlanden ersetzt. In dieser Version sind auch die verlegten Kabel im Wohnbereich dargestellt.
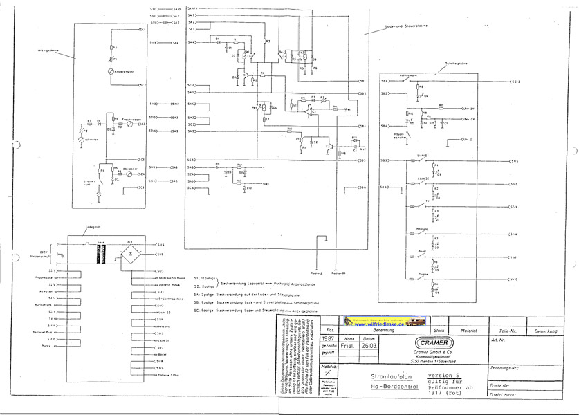
Stromlaufplan
Bedienungsblende und Ladegerät für Wohnmobil Hobby 600
Version 5 : gültig für Prüfnummer ab 1917 (rot)
Quelle: Zeichnung der Fa. Gegr. Cramer vom 26.03.87
Die Zeichnungen wurden mir von Carsten aus Koblenz zur Verfügung gestellt.
Update_29.05.09: mit größeren Seiten zum ausdrucken
Stromlaufplan
Bedienungsblende und Ladegerät für Wohnmobil Hobby 600
Version 4 : gültig für Prüfnummer 2487, 2488, 2489 (gelb), 2230 (gelb) bis 8975 (gelb), 0242 (rot) bis 1916 (rot)
Quelle: Zeichnung der Fa. Gegr. Cramer vom 28.08.85
Die Zeichnungen wurden mir von Carsten aus Koblenz zur Verfügung gestellt.
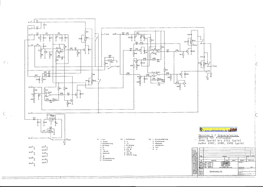
Stromlaufplan / Blockschaltbild
Bedienungsblende und Ladegerät für Wohnmobil Hobby 600
Version 3 : gültig für Prüfnummer 2046 (gelb) bis 2723 (gelb) außer 2487, 2488, 2489 (gelb)
Quelle: Zeichnung der Fa. Gegr. Cramer vom 03.09.85
Die Zeichnungen wurden mir von Carsten aus Koblenz zur Verfügung gestellt.
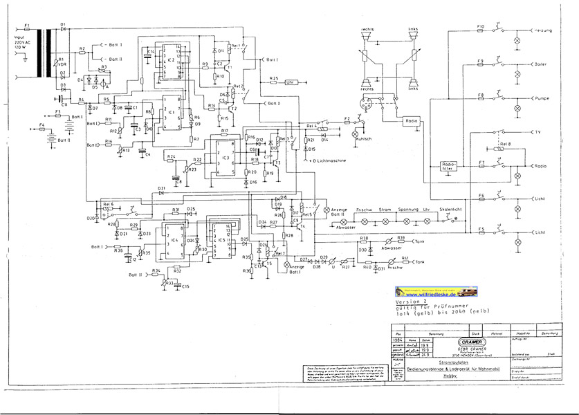
Stromlaufplan
Bedienungsblende und Ladegerät für Wohnmobil Hobby 600
Version 2 : gültig für Prüfnummer 1014 (gelb) bis 2040 (gelb)
Quelle: Zeichnung der Fa. Gegr. Cramer vom 19.09.84
Die Zeichnungen wurden mir von Carsten aus Koblenz zur Verfügung gestellt


